East London Central Synagogue
40 Nelson Street, Whitechapel
London
E1 2DE
Freehold East London Former Synagogue
- Prominent Purpose Built Synagogue Building
- Approx. 472.10 sq m (5,081 sq ft) GIA plus vacant land to the side
- Of interest to occupiers & developers with potential for alternative uses
- Mixed residential and commercial location
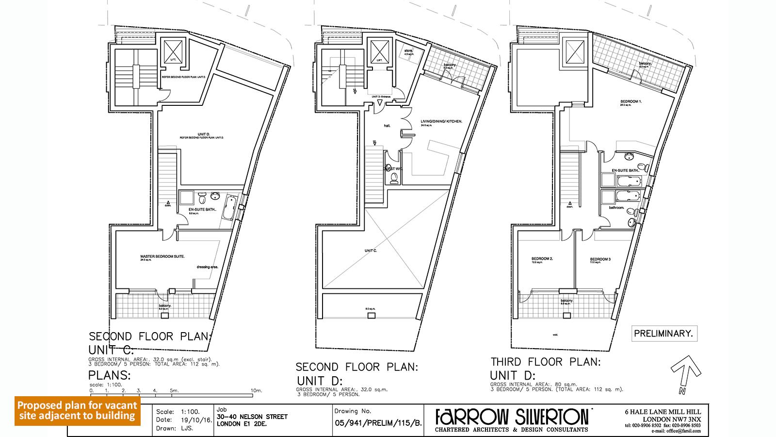
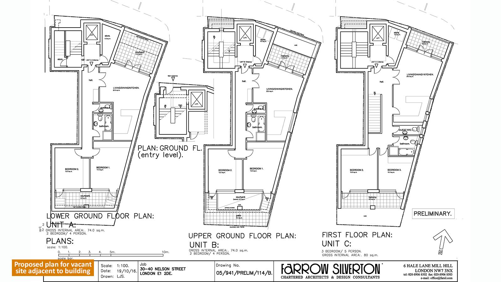
- Lapsed planning permission on land to the side granted for a 5 storey development comprising 4x residential units
- 0.5 miles from Whitechapel Underground & Overground Stations
- VAT-free Property
- Lot
9 - Auction
12th February 2026 - Vacant Possession
- Status
Sold Prior - Price
- Auction Venue
Live Streamed Auction - On Behalf Of Federation of Synagogues
- Photos
- Map





















