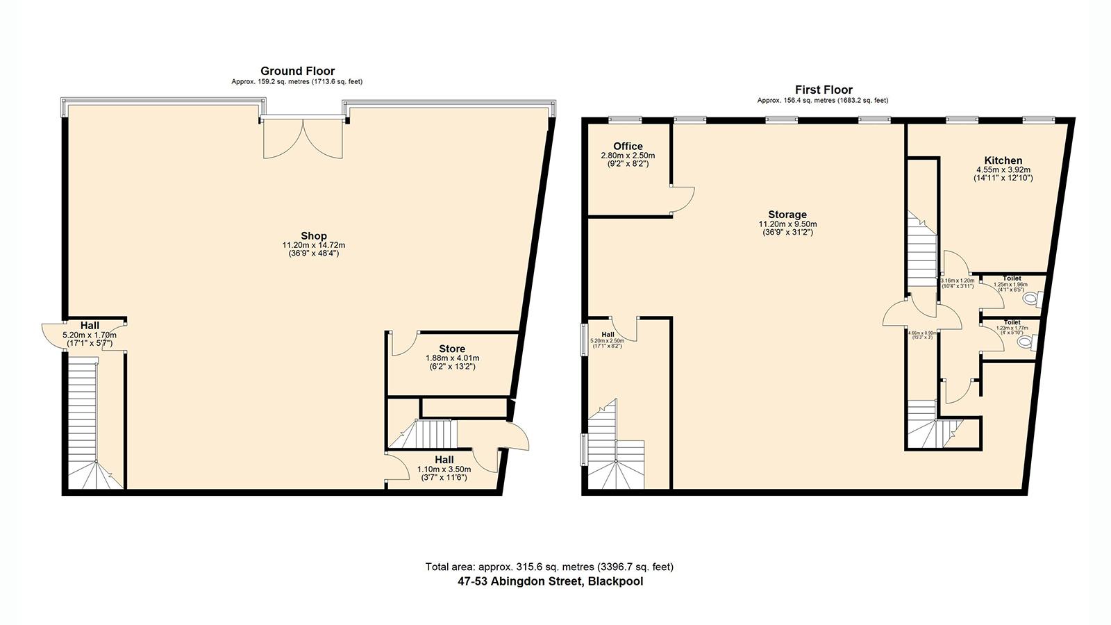
47-53 Abingdon Street
Blackpool
Lancashire
FY1 1DH
Freehold Retail/Residential Development Opportunity
- Fully vacant double-fronted shop on the ground/first floor with 3 bed flat on second floor
- Approx. 389.50 sq m (4,192 sq ft)
- Town centre location
- Potential to convert to residential on first floor (subject to consents), with lapsed planning consent to convert into 3 flats
- Of interest to owner occupiers, developers and investors
- Close to the new Department of Work and Pensions office and Lancashire University's new campus - University Centre Blackpool
- Lot
34 - Auction
12th February 2026 - Vacant Possession
- Status
Sold - Price
£198,000 - Auction Venue
Live Streamed Auction
- Photos
- Map











