20 to 22 French Gate
Doncaster
South Yorkshire
DN1 1QQ
Freehold Retail Investment with Residential Planning Consent
- Retail Let to Everyday Lending Limited
- Comprises Retail Unit with Self Contained Offices
- Everyday Lending Limited in Occupation since at least 2017
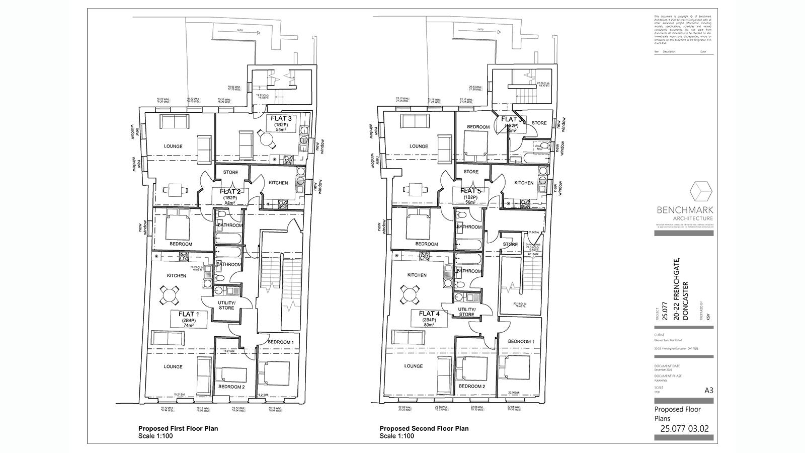
- Planning Consent Granted for conversion of offices to 4 flats
- Pedestrianised Town Centre Location Opposite the Frenchgate Shopping Centre
- Neighbouring occupiers include Boots Pharmacy, HMV and Leeds Building Society
- Lot
35 - Auction
12th February 2026 - Rent
£33,000 per Annum Exclusive
With Self Contained Vacant Upper Parts - Status
Sold - Price
£312,500 - Auction Venue
Live Streamed Auction
- Photos
- Map













