Iceland, 142-146 High Street
Stoke Newington
London
N16 7JL
Inner London Convenience Store Investment
- Let to Iceland Foods Limited until September 2031 (no breaks)
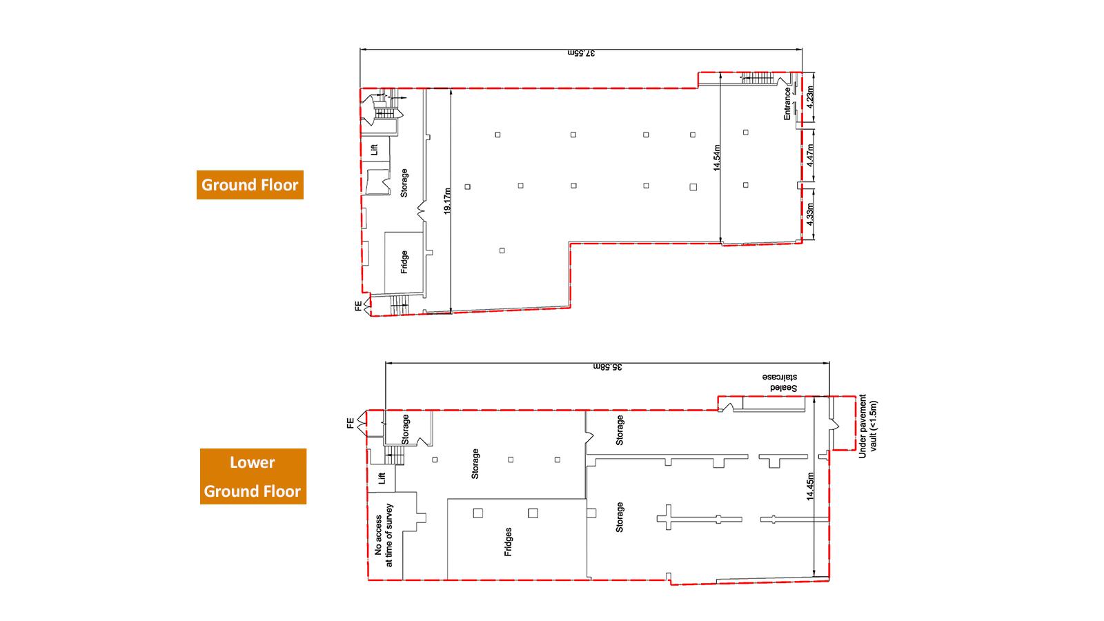
- Triple Fronted Convenience Store
- Approx. floor area 1,132.8 sq m (12,193 sq ft)
- Prominent and Busy Inner London High Street location
- Close to Stoke Newington, Rectory Road and Dalston Kingsland Overground Stations
- Neighbouring occupiers include Costa Coffee, Sports Direct, Sainsburys, KFC, Franco Manca and Pret A Manger
- Lot
28 - Auction
30th October 2025 - Rent
£131,675 per Annum Exclusive - Status
Available - Guide*
Contact Us - Auction Venue
Live Streamed Auction
- Photos
- Map











-128x72.jpg)





