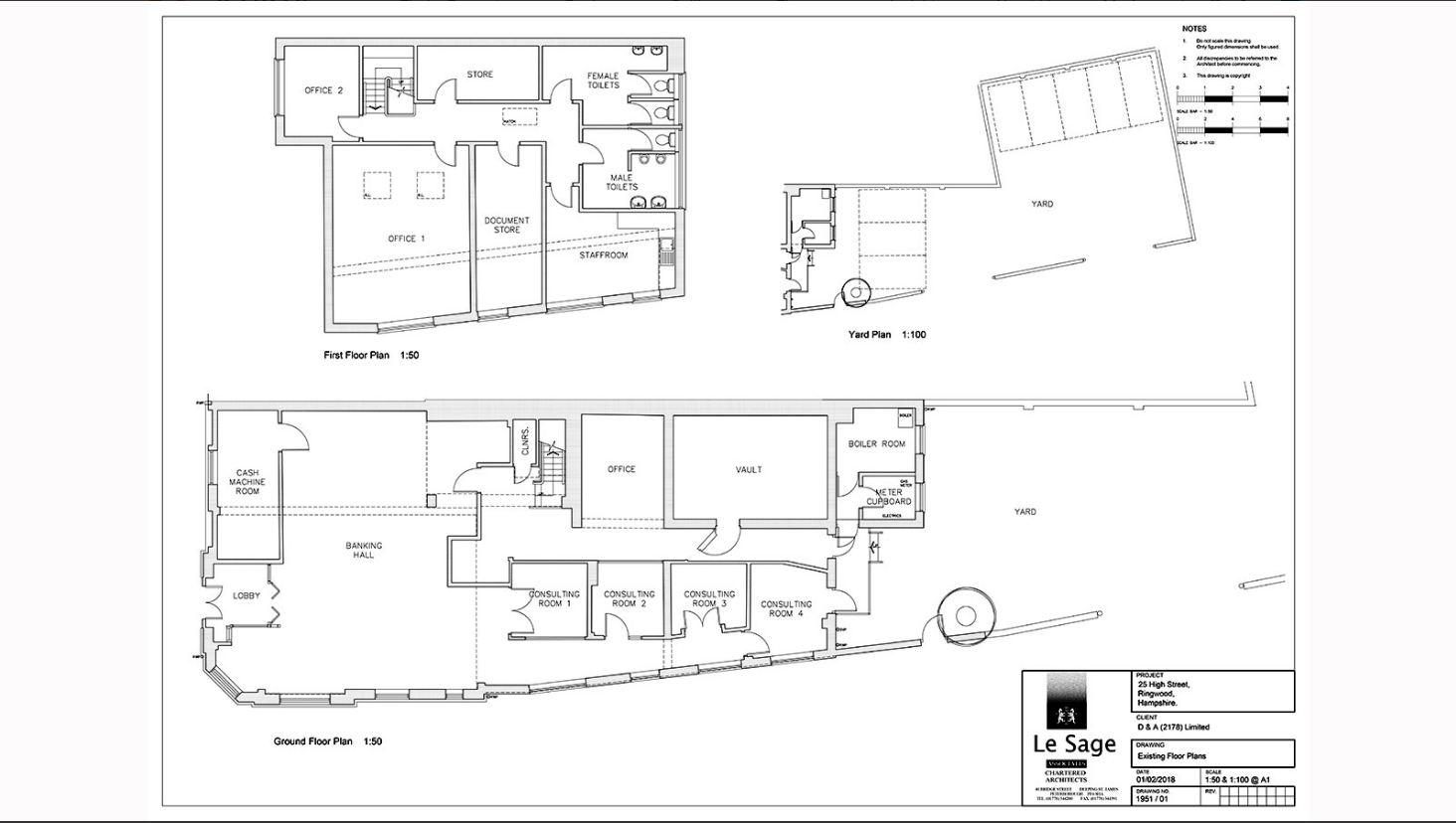
Lloyds Bank
25 High Street
Ringwood
Hampshire
BH24 1BD
Freehold Bank Investment
- Entirely let to Lloyds Bank Plc
- Lease extended in March 2023 at the same rent
- March 2026 tenant break option not exercised
- Includes car park at rear for up to 10 cars
- Potential residential development opportunity to the rear of the car park to include two townhouses (subject to lease and consents)
- Historic and prosperous market town
- VAT free Investment
- Nearby retailers include Waitrose, Sainsbury's, Prezzo, Domino's, Boots the Chemist, Superdrug and Clarks
- Lot
43 - Auction
30th October 2025 - Rent
£45,000 per Annum Exclusive - Status
Sold - Price
£425,000 - Auction Venue
Live Streamed Auction - On Behalf of Trustees
- Photos
- Map











