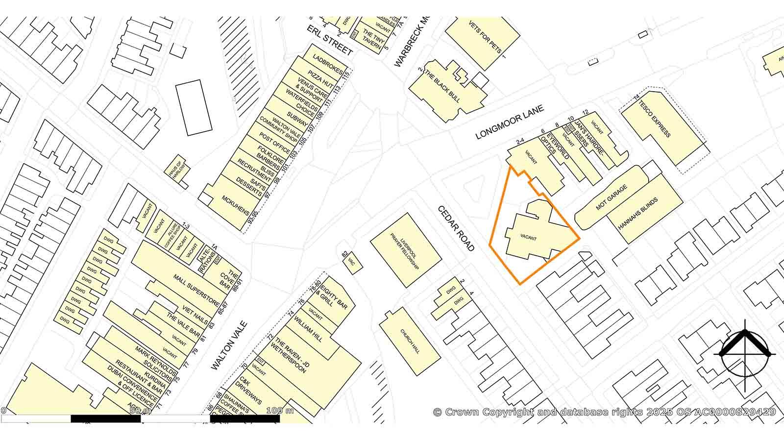
Former NatWest, Longmoor Lane
Aintree
Liverpool
Merseyside
L9 0EG
Freehold Former Bank Opportunity with Immediate Asset Management Opportunities
- Substantial former bank building
- Prominent position in Aintree town centre
- Approx. 351.00 sq. m. (3,783 sq. ft.) over Ground, First and Second Floors
- Of interest to owner occupiers
- Asset management opportunities
- Nearby occupiers include Tesco Express, JD Wetherspoon and Home Bargains
- Not elected for VAT
- Lot
66 - Auction
30th October 2025 - Vacant Possession
- Status
Sold - Price
£292,000 - Auction Venue
Live Streamed Auction - On Behalf of NatWest Bank
- Photos
- Map













